A detached penthouse with a homely feel
city Sofia, Krastova vada
395 m2 3 3 5/6
Property description
BULGARIA SOTHEBY’S INTERNATIONAL REALTY presents to your attention a detached penthouse with a house feel in a new building in Krastova Vada district. In close proximity to “Amaya Residence”, kindergarten, two metro stations, school, park and large shopping center. Fast communication with the center of Sofia and the Ring Road.
PROPERTY FEATURES
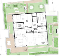
Total area 340.12 sq.m.
Common areas 55.36 sq.m.
Total area with basement 403.94 sq.m.
Layout:
First level: entrance hall, living room with dining room and kitchenette, terrace to them, closet, bathroom with toilet, bedroom, staircase to level 2.
Second level: mezzanine, two bedrooms, two bathrooms with toilets.
PROPERTY ADVANTAGES
- Ceiling height of 3 meters, create the feeling of living in a house with a yard, but in one of the central areas of the Capital, with ensured maintenance of the surrounding area and controlled access.
- Amazing green views. Some of them take you directly to the mountains, and others to the cozy and peaceful private park.
- All apartments are bright, spacious and functional.
- Thermal and waterproofing, double glazing and PVC profiles meet the highest modern European standards and provide peace, light and reduced energy consumption.
- Underground parking with car wash.
- Private park to the complex. Large internal landscaped and equipped park with ensured constant maintenance of the green areas.
- Designed on three levels, a fitness center with a spa area and halls for group and individual training. offers you a variety of modern equipment. A protein bar and cafe will be built next to the gym for the convenience of visitors.
- Children's playground with a kids' club - a comfortable place for games and entertainment.
DEGREE OF COMPLETION OF THE PROPERTY
- WALLS: External walls – brick “Wienerberger-Porotherm” 25 cm., and expanded polystyrene EPS and silicone plaster of “BAUMIT”. Internal walls – brick “Wienerberger-Porotherm” 12 cm., gypsum plaster and putty;
- CEILINGS: On apartments – gypsum plaster and putty; On sanitary premises andwarehouses – cement plaster;
- FLOORS: On apartments – cement screed; On balconies, loggias and terraces – finished with frost-resistant granite tiles; Roof terraces and terraces on the top floor – finished according to the project;
- JOINERY: A high-class PVC profile with triple glazing and one double-sided opening in each room will be installed; Entrance doors – armored with natural veneer, steel frame with three-dimensional locking.
- VIDEO INTERCOM INSTALLATION: Each apartment is wired for a video intercom system and an additional doorbell button in front of the door.
- WATER SUPPLY AND SEWERAGE: A cold water meter is provided for each apartment, as well as the necessary fittings for it. The water meters will have terminals for remote reading.
- HEATING, VENTILATION AND AIR CONDITIONING: A pipe network for an individual heating installation will be built for each apartment, providing the possibility of future installation of a gas boiler for heating and heating water for domestic needs.
Ref.№5607
- Elevator
- Gated complex
- Luxury
- Controlled Access
- Unfurnished
- Gated community
- Video security
- Terrace
- Parking
Similar offers
New
Modern designer apartment on the shore of Lake Pancharevo
city Sofia,
s. Pancharevo
300 m2 2 2
excluding VAT
Magnificent three-bedroom apartment with a double garage in...
city Sofia,
Iztok
343 m2 3 3
excluding VAT
Three-bedroom apartment in an emblematic building in the...
city Sofia,
Doktorski pametnik
178 m2 3 2 1⁄2
×
❮
❯
